CLOSE
Über uns
Projekte
Leistungen
Kontakt
Impressum
Datenschutz
Über uns
Projekte
Leistungen
Kontakt
MENU
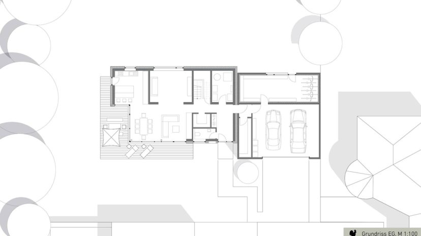
Wohnungsbau:
Einfamilienwohnhaus in Passivbauweise
Bauherr:
Privat
Zurück zur Übersicht